Elytron e+u

Ελληνικά English

ΕΡΓΑ ΥΠΟ ΚΑΤΑΣΚΕΥΗ

Μελέτες & Έργα

Ίδρυμα τεχνολογίας και έρευνας (ΙΤΕ) - Κέντρο καινοτομίας και προχωρημένης εκπαίδευσης Πάτρα

Κατασκευή νέου διόροφου κτηριακού συγκροτήματος με υπόγειο εκτάσεως 5.643,84 τ.μ., που προβλέπεται να στεγάσει τις δραστηριότητες του Ινστιτούτου Βιοϊατρικών Ερευνών (ΙΒΕ). Χωροθετείται σε απόσταση περίπου 70 μέτρων βορειοδυτικά των υφιστάμενων κτιριακών εγκαταστάσεων του ΙΕΧΜΗ (Ινστιτούτο Επιστημών...

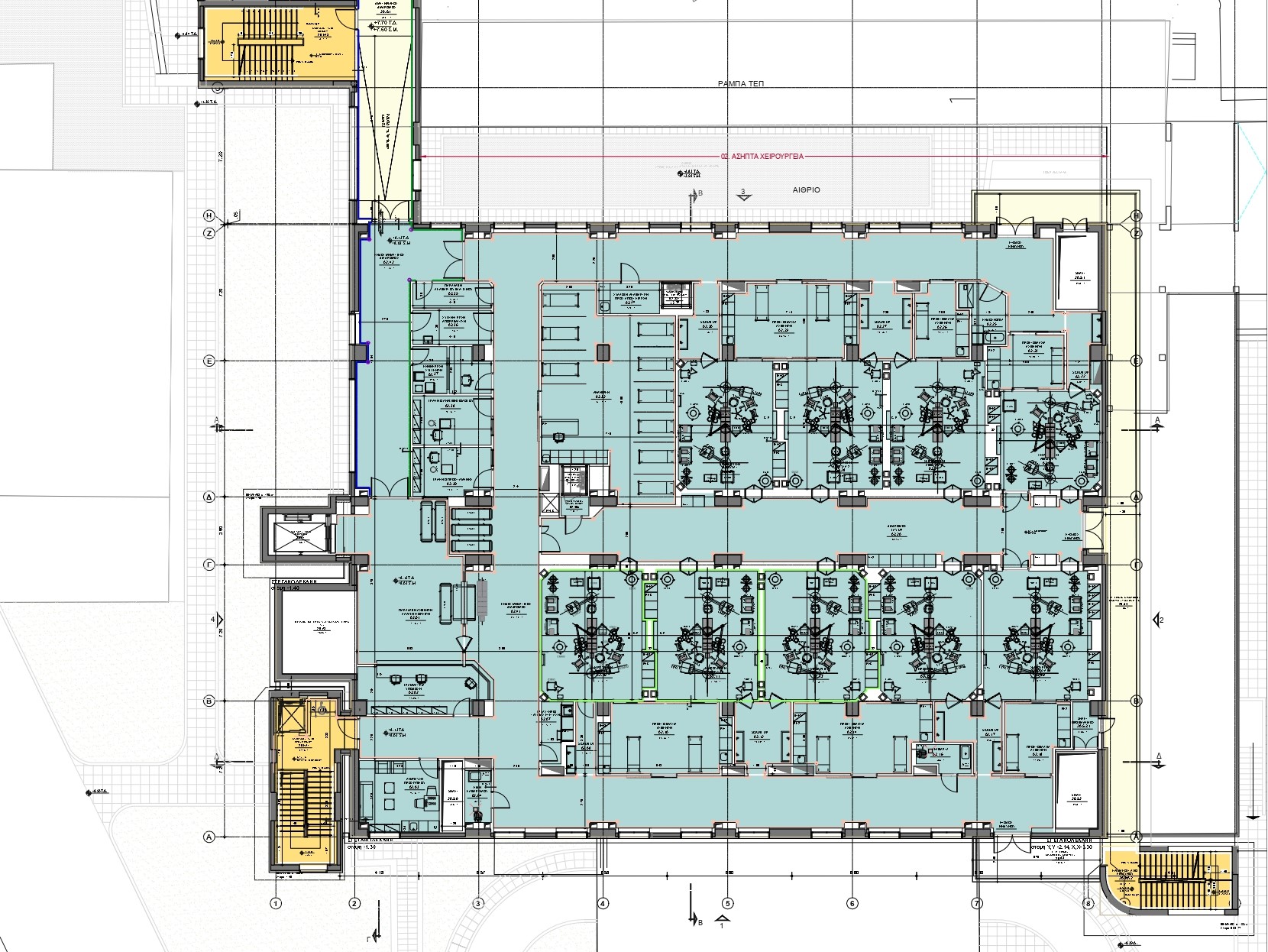
Προσθήκη 2 ορόφων στο κτίριο Τ.Ε.Π. για τη δημιουργία χειρουργείων και κεντρικής αποστείρωσης στο Γενικό Νοσοκομείο Νίκαιας «Αγ. Παντελεήμων»

Προσθήκη 2 ορόφων στο κτίριο Τ.Ε.Π. για τη δημιουργία χειρουργείων και κεντρικής αποστείρωσης στο Γενικό Νοσοκομείο Νίκαιας «Αγ. Παντελεήμων»

Προσθήκη καθ’ ύψος δύο ορόφων, στο υφιστάμενο ισόγειο κτίριο του Τμήματος Επειγόντων Περιστατικών (Τ.Ε.Π.),του Γενικού Νοσοκομείου Νίκαιας «ΑΓ. ΠΑΝΤΕΛΕΗΜΩΝ» για την δημιουργία εννέα σύγχρονων ,πλήρως εξοπλισμένων χειρουργικών αιθουσών στον Β’ Όροφο και τμήματος Κεντρικής αποστείρωσης στον Α’ Όροφο π...

Ίδρυμα Τεχνολογίας και Έρευνας (ΙΤΕ) - Κέντρο Καινοτομίας Και Προχωρημένης Εκπαίδευσης» Ιωάννινα

Ίδρυμα Τεχνολογίας και Έρευνας (ΙΤΕ) - Κέντρο Καινοτομίας Και Προχωρημένης Εκπαίδευσης» Ιωάννινα

Κατασκευή νέου διώροφου κτιρίου με υπόγειο που προβλέπεται να στεγάσει τις δραστηριότητες του Ινστιτούτου Βιοϊατρικών Ερευνών (ΙΒΕ). Χωροθετείται σε οικοπεδικό χώρο 8.000m2 της Πανεπιστημιούπολης Ιωαννίνων οπου η διαμόρφωσή του έχει σκοπό τόσο την ένταξη του κτιρίου στο φυσικό περιβάλλον αλλά και στ...