Elytron e+u

Ελληνικά English

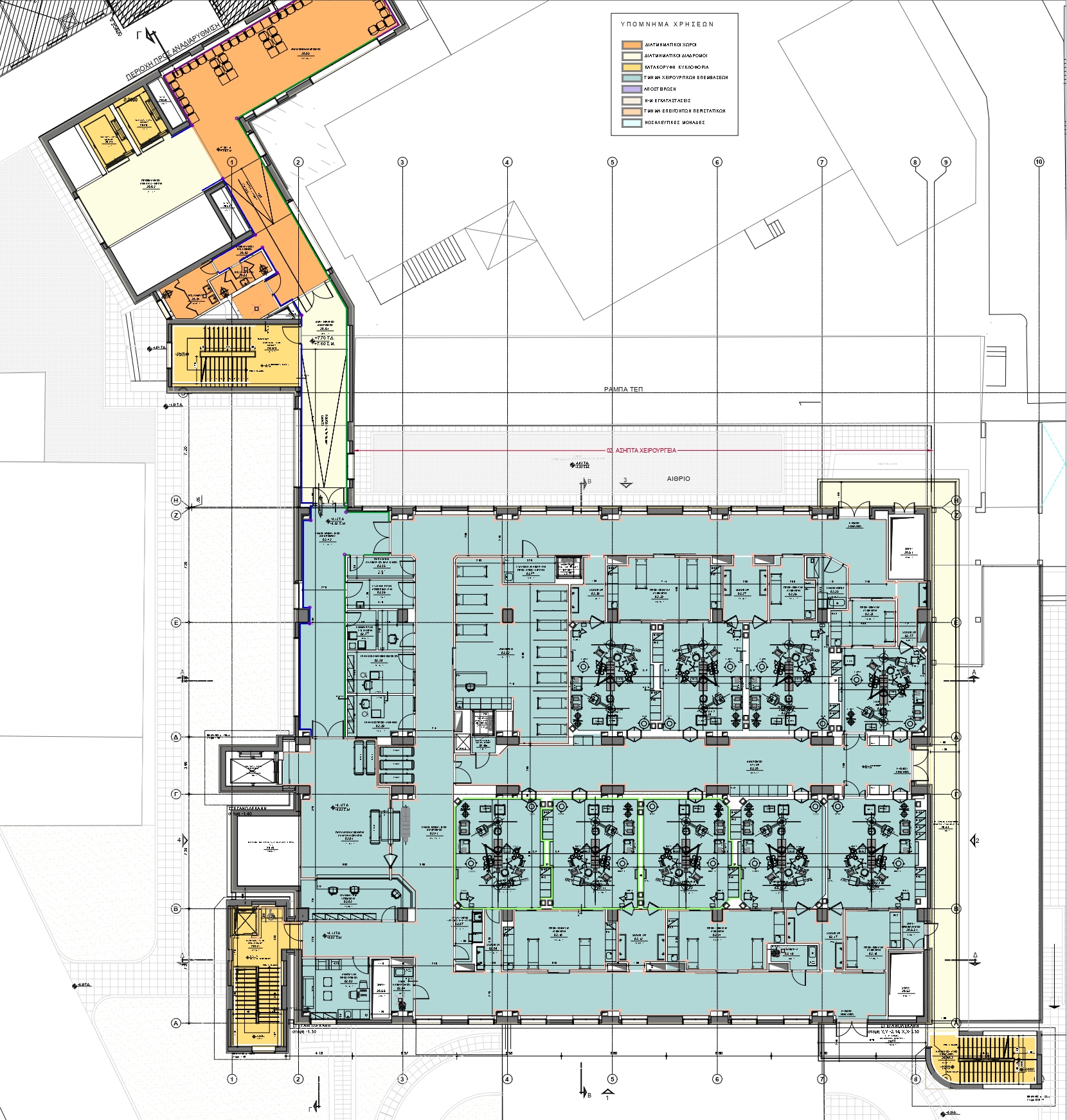
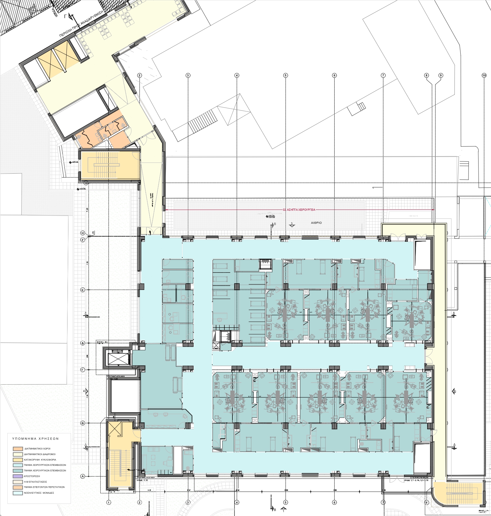
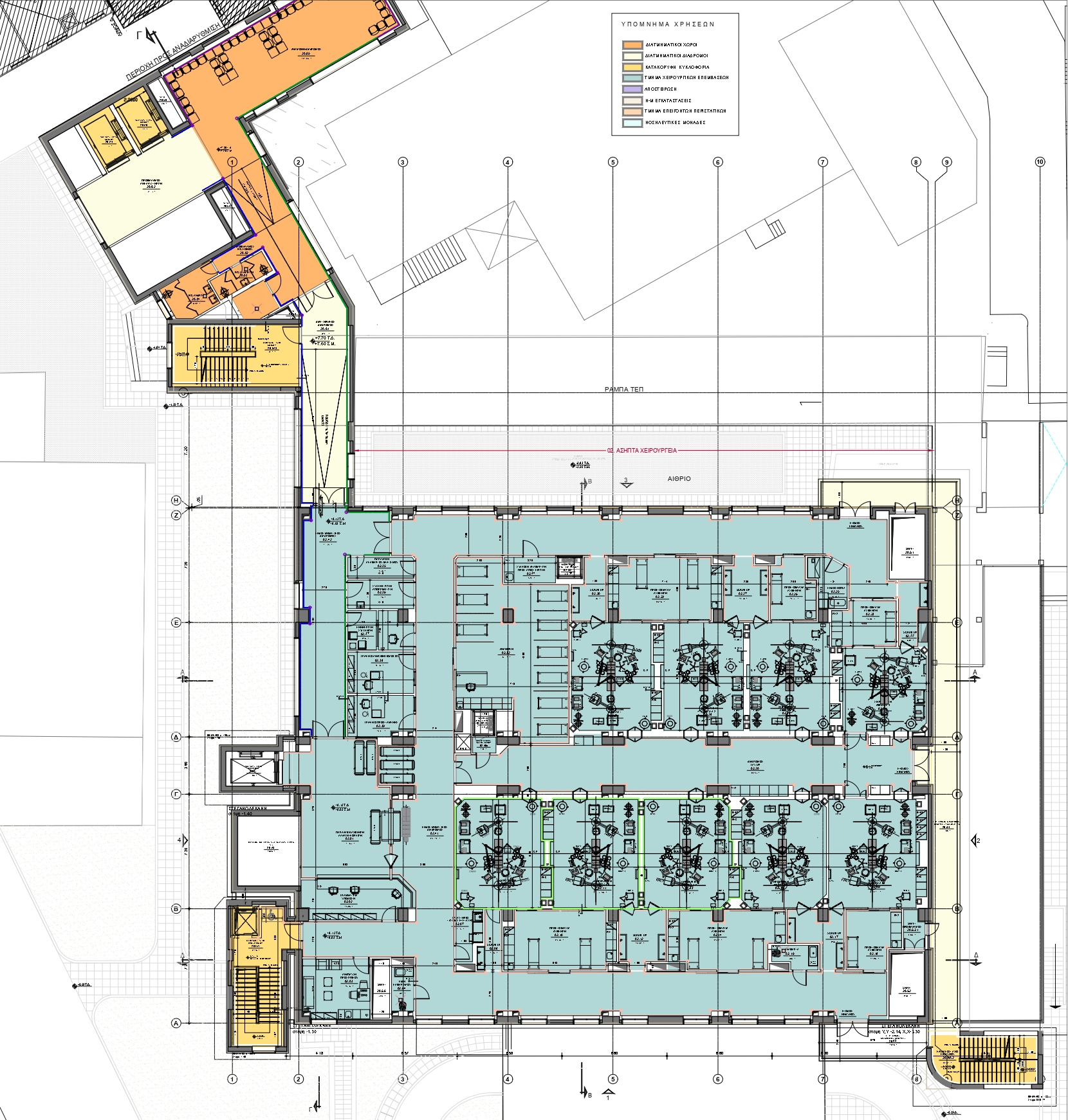
Προσθήκη 2 ορόφων στο κτίριο Τ.Ε.Π. για τη δημιουργία χειρουργείων και κεντρικής αποστείρωσης στο Γενικό Νοσοκομείο Νίκαιας «Αγ. Παντελεήμων»


Προσθήκη καθ’ ύψος δύο ορόφων, στο υφιστάμενο ισόγειο κτίριο του Τμήματος Επειγόντων Περιστατικών (Τ.Ε.Π.),του Γενικού Νοσοκομείου Νίκαιας «ΑΓ. ΠΑΝΤΕΛΕΗΜΩΝ» για την δημιουργία εννέα σύγχρονων ,πλήρως εξοπλισμένων χειρουργικών αιθουσών στον Β’ Όροφο και τμήματος Κεντρικής αποστείρωσης στον Α’ Όροφο που θα εξυπηρετεί το σύνολο του νοσοκομείου. Με δεδομένες τις αυξημένες ανάγκες της περιοχής , το έργο είναι υψίστης σημασίας και αποτελεί καθοριστική προσθήκη που θα συμβάλλει καθοριστικά στην βελτιστοποίηση της λειτουργίας του συνόλου του Γενικού Νοσοκομείου Νίκαιας «ΑΓ. ΠΑΝΤΕΛΕΗΜΩΝ»

Φωτογραφίες

ΚΤΙΡΙΑ ΥΓΕΙΑΣ

Άλλα έργα