Elytron e+u

Ελληνικά English

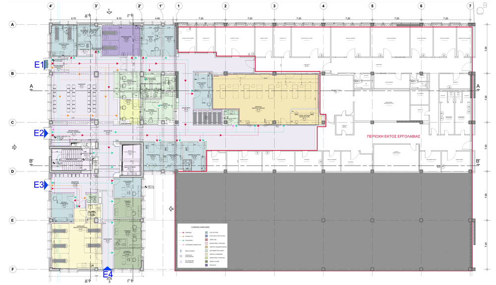
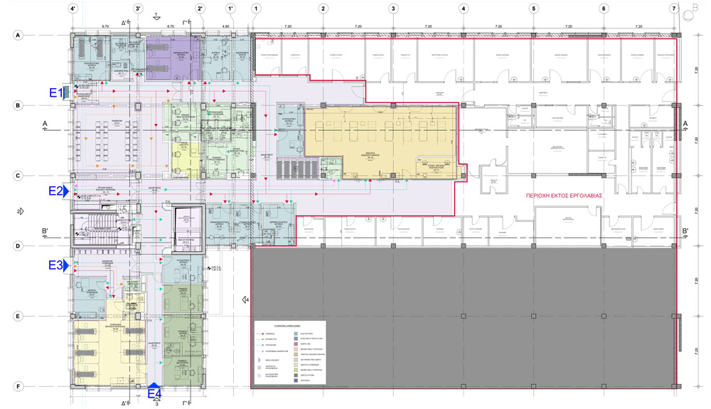
Επέκταση Τ.Ε.Π. και κατασκευή αίθουσας αναζωογόνης στο Π.Γ.Ν. Ιωαννίνων


Το έργο αφορά στην επέκταση και λειτουργική αναβάθμιση του Τμήματος Επειγόντων Περιστατικών (Τ.Ε.Π.) του Πανεπιστημιακού Γενικού Νοσοκομείου Ιωαννίνων, με την κατασκευή νέων χώρων κατ’ επέκταση του ισογείου και τη δημιουργία σύγχρονης Αίθουσας Αναζωογόνησης. Η παρέμβαση κρίνεται αναγκαία λόγω της υφιστάμενης ανεπάρκειας χώρων για τη διενέργεια εξετάσεων, τη βραχεία νοσηλεία, την κυκλοφορία ασθενών και προσωπικού, καθώς και την παραμονή/αναμονή των ασθενών. Επιπλέον, το Τ.Ε.Π. δεν διαθέτει επαρκή και κατάλληλα εξοπλισμένη Αίθουσα Αναζωογόνησης, κατάλληλη για το επίπεδο του Νοσοκομείου.

Φωτογραφίες

ΚΤΙΡΙΑ ΥΓΕΙΑΣ

Άλλα έργα